

尼科液压高压球阀概述:
液压高压球阀是我公司开发利用先进技术工艺,主要用于液压管路中控制油液的流通和截止,本型球阀具有流阻损失小,密封性能可靠,操作方便,外观精美等特点。
尼科液压高压球阀参数:
1、系列代号:YJZQ系列
2、公称压力:315bar
3、适用介质:液压油
4、公称通径:J10N(W)-J50N(W)
5、阀体材料:1-45#、3-316不锈钢
6、球体材料:1-45#、3-316不锈钢
7、球封材料:1-POM(聚甲醛)、2-PTFE(聚四氟乙烯)
8、其他密封:1-NBR(丁腈橡胶)、2-FPM/FKM(氟橡胶)
9、手柄形式:01-C型锌合金曲柄、02-B型锌合金曲柄、03-B型铸钢曲柄、09-不带手柄
备注:材料1111为常规使用组合,PTFE材料使用时较高工作压力不超过100bar
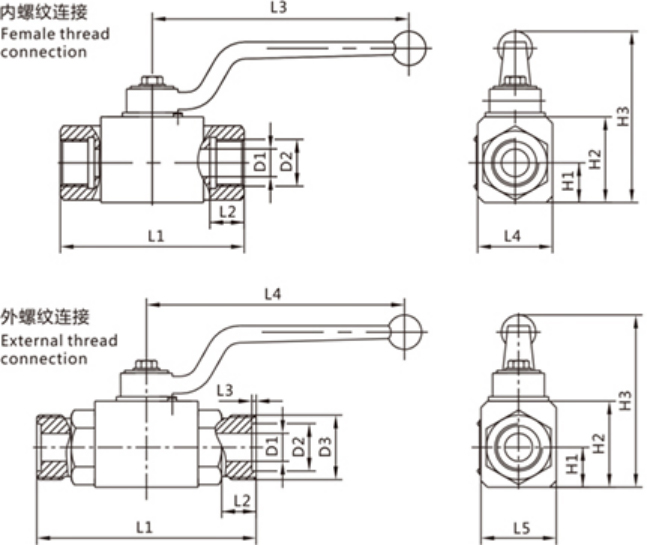
尼科液压高压球阀尺寸:

主要连接外形和尺寸-内螺纹
单位:mm
简略型号
D1
D2
L1
L2
L3
L4
H1
H2
H3
YJZQ-J10N
φ10
M18*1.5
78
14
105
32
16
36
76
YJZQ-J15N
φ12
M22*1.5
86
13
147
35
18.5
40
80
YJZQ-J20N
φ20
M27*2
108
18
185
48
22
55
101
YJZQ-J25N
φ25
M33*2
116
16
185
57
28.5
64
111
YJZQ-J32N
φ30
M42*2
136
18
240
75
37.5
84
134
YJZQ-J40N
φ38
M48*2
148
20
240
85
42.5
95
165
YJZQ-J50N
φ48
M64*2
180
22
240
104
52
112.5
180
主要连接外形和尺寸-外螺纹
单位:mm
简略型号
D1
D2
D3
L1
L2
L3
L4
L5
H1
H2
H3
YJZQ-J10W
φ10
φ20
M27*1.5
94
16
2
105
32
16
36
76
YJZQ-J15W
φ12
φ22
M30*1.5
102
16
2
147
35
18.5
40
80
YJZQ-J20W
φ20
φ28
M36*2
124
18
2.5
185
48
22
55
101
YJZQ-J25W
φ25
φ35



