

尼科铸铁法兰闸阀概述:
尼科法兰闸阀是管路系统中通过手轮转驱闸板沿通道轴线垂直方向移动切断接通介质流的控制部件,在使用过程中,阀门必须是全开或全关,不能用作调节流量。
闸阀关闭时,密封面可以只依靠介质压力来密封,即只依靠介质压力将闸板的密封面压向另一侧的阀座来保证密封面的密封,这就是自密封。大部分闸阀是采用强制密封的,即阀门关闭时,要依靠外力强行将闸板压向阀座,以保证密封面的密封性。
闸阀的闸板随阀杆一起作直线运动的,叫升降杆闸阀(亦叫明杆闸阀)。通常在升降杆上有梯形螺纹,通过阀门顶端的螺母以及阀体上的导槽,将旋转运动变为直线运动,也就是将操作转矩变为操作推力。有的阀门,阀杆螺母设在闸板上,手轮转动带动阀杆转动,而使闸板提升,这种阀门叫做旋转杆闸阀或叫暗杆闸阀。
尼科铸铁法兰闸阀参数:
公称通径:DN15-DN1200
公称压力:1.6Mpa
适用温度:120℃
适用介质:水、油
阀体材质:铸铁、灰铸铁、球墨铸铁
连接方式:法兰连接
设计制造:GB/T12234-89
结构长度:GB/T12221-89
法兰标准:JB79 GB/T9112-9131
检查试验:JB/T9092-99 GB/T13927-92
尼科铸铁法兰闸阀特性:
①符合国内外先进标准的要求,密封可靠、性能优良、造型美观;
②密封副配对先进合理,闸板和阀座的密封面采用铜合金;
③阀杆经调质及表面氮化处理,有良好的抗腐蚀性、抗擦伤性和耐磨性;
④采用楔式弹性闸板结构,中大口径设置推力轴承,磨擦力小,并配有撞击手轮,启闭轻松自如。
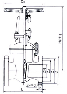
尼科铸铁法兰闸阀尺寸:

通径
50
65
80
100
125
150
200
250
300
350
400
450
500
600
L
180
195
210
230
255
280
330
380
420
450
480
510
540
600
H
345
376
417
460
525
567
705
800
886
968
1090
1175
1414
1593
尼科Z41T铸铁法兰闸阀是一个启闭件闸板,闸板的运动方向与流体方向相垂直,闸阀只能作全开和全关。闸阀关闭时,密封面可以只依靠介质压力来密封,即只依靠介质压力将闸板的密封面压向另一侧的阀座来保证密封面的密封,这就是自密封。大部分闸阀是采用强制密封的,即阀门关闭时,要依靠外力强行将闸板压向阀座,以保证密封面的密封性。本系列阀门阀体为铸铁,常用于排水系统。



