

尼科升降式衬氟止回阀概述:
尼科H41F升降式衬氟止回阀是能自动阻止流体倒流的阀门,止回阀的阀瓣在流体压力作用下开启,流体从尼科侧流向出口侧;当尼科侧压力低于出口侧时,阀瓣在流体压差、本身重力等因素作用下自动关闭以防止流体倒流。专用于控制腐蚀性或强腐蚀性介质,阀体内腔表面覆有可供选择的各种氟塑料,具有强度高、耐腐蚀性能好的特点,适用于不同工作温度和流体管路,防止各类管路或设备上的介质逆流的单向阀。
止回阀的启闭件靠介质流动和力量自行开启或关闭,以防止介质倒流。止回阀一般分为升降式、旋启式、蝶式及卧式等四种类型,通式升降式止回阀应安装于水平管路上,立式升降式止回阀和底阀一般安装在垂直管路上,并且介质自下而上流动,旋启式止回阀安装位置不受限制,通常安装于水平管路,但也可以安装于垂直管路或倾料管路上。注意:止回阀只允许介质向一个方向流动,应特别注意介质流动方向,应使介质正常流动方向与阀体上指示的箭头方向相一致,否则就会截断介质的正常流动。
尼科升降式衬氟止回阀参数:
公称通径:DN15-DN300
公称压力:1.6Mpa-2.5Mpa
适用温度:-10℃~180℃
适用介质:酸、碱、盐、王水、有机酸等强腐蚀性介质
阀体材质:铸铁、铸钢、碳钢
连接方式:法兰连接
设计标准:GB 12236
结构长度:GB 12221
检验试验:GB/T13927
法兰标准:JB/T79-94;GB 9113.1-26
尼科升降式衬氟止回阀特性:
可用在强腐蚀性介质上起到止回作用,防止介质倒流。
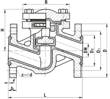
尼科升降式衬氟止回阀尺寸:

主要连接外形和尺寸 单位:mm
通径
15
20
25
32
40
50
65
80
100
125
150
200
250
300
L
130
150
160
180
200
230
290
310
350
400
480
600
730
850
尼科升降式衬氟止回阀为直通式结构,衬氟阀瓣垂直于管路轴线作升降运动。采用特殊模压工艺,将氟塑料衬于阀体壳体内壁,能耐强酸、强碱的腐蚀,流道光滑、密封性好、零泄漏。此阀门为自动阀门,启逆止作用,水平安装于工业管道中。



