当前位置: 首页 > 产品展示 > 通用阀门 > 尼科止回阀
产品展示


尼科多功能缓开缓闭止回阀
详情信息
尼科NIKO(中国)办事处-江苏尼科阀业有限公司提供【多功能缓开缓闭止回阀】标准、图纸、原理、参数、认证、说明书。质量可靠,价格合理,售后优质。我们拥有专业的生产技术图纸和完整的技术服务方案,为用户提供一站式的系统解决方案。
尼科多功能缓开缓闭止回阀概述:
尼科DY30AX缓开缓闭多功能止回阀安装在市政、建筑、钢铁、冶金、石油、化工、煤气(天然气)、食品、医药、电站、核电等领域的取水、送水、潜水、污水泵房及石油、化工流体的输送系统中,融电动阀、止回阀和水锤消除器三种设备的功能于一体,能有效地提高系统安全可靠性,满足系统自动化控制要求。
多功能止回阀能快速开启,反应迅速;快速关闭,防止水锤产生。无水质要求,可用于污水、清水及原水系统。
尼科多功能缓开缓闭止回阀参数:
公称通径:DN40-DN1000
公称压力:1.6Mpa-2.5Mpa
适用温度:-10℃~80℃
适用介质:水、油、性质接近水的液体
阀体材质:铸铁、铸钢、碳钢、不锈钢
连接方式:法兰连接
连接尺寸:GB/T17241.6
尼科多功能缓开缓闭止回阀特性:
①安全可靠性高。具有速闭、缓闭以及吸能腔三种消除水锤措施,而且动作完全联锁,不会产生误动作;
②无需操作控制。当水泵启停时,巧妙地利用阀门两端的介质及其压力差作为驱动介质和控制动力,使阀门自动按水泵操作规程的要求进行动作;
③无需专业调试。阀门动作不受液位高差和出水压力以及水泵流量变化的影响,适应范围广;
④节能效果明显。利用尼科端的压力进入下腔支撑膜片压板及阀杆的重量,阻力损失小。
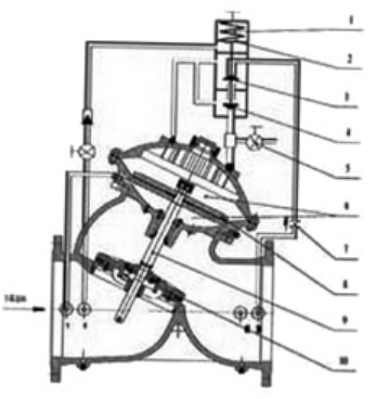
尼科缓开缓闭止回阀DY30AX有阀体、阀盖、阀瓣、阀杆、弹簧、导阀等零件组成。上阀盖与下阀盖之间为隔膜腔,隔膜腔内设隔膜,隔膜与中心轴连接,中心轴另一端连接阀门,阀门与阀座接触。水容器与上阀盖进水、出水控制孔连通,水容器与上阀盖出水为节流连通,水容器与上阀盖进水为单向连通。
尼科多功能缓开缓闭止回阀概述:
尼科DY30AX缓开缓闭多功能止回阀安装在市政、建筑、钢铁、冶金、石油、化工、煤气(天然气)、食品、医药、电站、核电等领域的取水、送水、潜水、污水泵房及石油、化工流体的输送系统中,融电动阀、止回阀和水锤消除器三种设备的功能于一体,能有效地提高系统安全可靠性,满足系统自动化控制要求。
多功能止回阀能快速开启,反应迅速;快速关闭,防止水锤产生。无水质要求,可用于污水、清水及原水系统。
尼科多功能缓开缓闭止回阀参数:
公称通径:DN40-DN1000
公称压力:1.6Mpa-2.5Mpa
适用温度:-10℃~80℃
适用介质:水、油、性质接近水的液体
阀体材质:铸铁、铸钢、碳钢、不锈钢
连接方式:法兰连接
连接尺寸:GB/T17241.6
尼科多功能缓开缓闭止回阀特性:
①安全可靠性高。具有速闭、缓闭以及吸能腔三种消除水锤措施,而且动作完全联锁,不会产生误动作;
②无需操作控制。当水泵启停时,巧妙地利用阀门两端的介质及其压力差作为驱动介质和控制动力,使阀门自动按水泵操作规程的要求进行动作;
③无需专业调试。阀门动作不受液位高差和出水压力以及水泵流量变化的影响,适应范围广;
④节能效果明显。利用尼科端的压力进入下腔支撑膜片压板及阀杆的重量,阻力损失小。
尼科多功能缓开缓闭止回阀尺寸:

主要连接外形和尺寸 单位:mm
通径
50
65
80
100
125
150
200
250
300
350
400
450
500
L
203
216
248
283
330
356
450
540
570
635
700
770
810
尼科缓开缓闭止回阀DY30AX有阀体、阀盖、阀瓣、阀杆、弹簧、导阀等零件组成。上阀盖与下阀盖之间为隔膜腔,隔膜腔内设隔膜,隔膜与中心轴连接,中心轴另一端连接阀门,阀门与阀座接触。水容器与上阀盖进水、出水控制孔连通,水容器与上阀盖出水为节流连通,水容器与上阀盖进水为单向连通。



